CTS系列順流濕式磁選機
添加時間:2019-03-28 17:18:28 瀏覽量:3760

概述:
CTS型順流濕式磁選機適用于濕式選別礦石粒度為0~6mm的較粗顆粒度強磁性物料的粗選和精選,或者除去非磁性物料中混雜的強磁性礦物。本機可以連續給礦和排礦,磁場強度大,磁場梯度高,工作間隙大,具有較高的處理能力。亦可多臺串連工作。
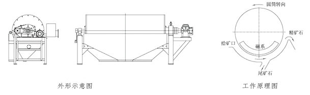
工作原理:
當礦漿進入磁場區時,其中強磁性礦物被吸附在滾筒表面,弱磁性和非磁性礦物被水流沖洗排出,而吸附在滾筒表面的磁性礦物隨滾筒旋轉,被帶出磁場區,用沖洗水沖入精礦槽中,完成分選作業。

主要技術參數:

注:1.根據安裝方位分左右式兩種結構。
2.筒表磁感應強度中掃選區平均值和最高磁感應強度值根據不同礦物含鐵情況和不同的選別要求確定的,磁場
強度范圍從 1000GS至6000GS均可制作。
上一篇:CTN系列全逆流濕式磁選機
下一篇:最后一篇

服務熱線:










